产品展示
质量赢得尊重,诚信获得尊严
热忱欢迎社会各界朋友前来洽谈、合作。
当前位置:首页 > 产品展示
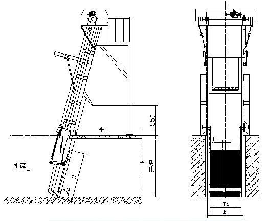
WGL型高链式格栅除污机
用途:
广泛适应于污水和雨水泵站及污水处理厂,拦截捞取污水中粗大的漂浮物和悬浮物,对后序起保护作用和减轻负荷作用,适用于格栅井,水深不超过2m的场合。
工作原理及构造:
主要由电动驱动装置、机架、回转链条、齿耙、栅条等部件组成。高链式格栅除污机装有单个齿耙在链条的驱动下作回转运动,即当链条由顶部的驱动装置带动做顺时针运转时,齿耙架受链条和导轨的约束作平面运动,在链条运行一周内完成齿耙闭合取渣,输渣、卸渣及换位的一整套循环动作,并通过顶部卸渣装置和除污耙的相对运动,将污物卸至输送机运走。工作时,污水从栅条的栅隙处流过,截流在栅条面上的垃圾在回转链带动的耙齿捞起后由下向上输送,耙斗到出料口时,由机架下方的橡胶清污板刮下。
特点:
1、结构简单,运行稳定可靠。
2、水下无任何传动部件,使用寿命长,维护检修方便。
3、过载保护,运行安全。
型号规格与主要技术参数表:
|
参数型号 Parameter type |
格栅宽B1 (mm) Grille width |
井宽 B(mm) Well width |
工作水深 (mm) Working water depth |
栅条间隙 b(mm) Grille clearance |
行走速度 (m/min) Walking speed |
格栅倾角 α Grid inclination angle |
电机功率 (KW) Motor Power |
| WGL800 | 800 | 830 | 700~2000 | 12~20 | 4.42 | 75º | 0.75 |
| WGL1000 | 1000 | 1030 | 700~2000 | 12~20 | 4.42 | 75º | 0.75 |
| WGL1200 | 1200 | 1230 | 700~2000 | 12~20 | 4.42 | 75º | 0.75 |
| WGL1350 | 1350 | 1380 | 700~2000 | 12~20 | 4.42 | 75º | 1.1 |
| WGL1500 | 1500 | 1530 | 700~2000 | 12~20 | 4.42 | 75º | 1.1 |
| WGL1650 | 1650 | 1680 | 700~2000 | 12~20 | 4.42 | 75º | 1.1 |
| WGL1800 | 1800 | 1830 | 700~2000 | 12~20 | 4.42 | 75º | 1.5 |
| WGL2000 | 2000 | 2030 | 700~2000 | 12~20 | 4.42 | 75º | 1.5 |
型号表示方式:





